 |
联系人:陆红男
电话:0510-85958087 85958089
传真:0510-85957981
手机:13961813781
联系人:薛佳
手机:13912360722
地址:江苏省无锡市滨湖区南湖中路
邮编:214128
http://m.xfnvaqz.cn
E-Mail:mhgl_1954@163.com |
|
 |
| rcd |
|
| 【FUL型浮头式油加热散热器】 |
|
|
FUL型散热器是—种新型的换热装置,它采用了具有优良技术性能的钢铝复合翅片管和用以补偿热应力的浮头式结构,因此,它是以导热油(也称有机热载体或热煤体)为传热介质进行空气加热换热装置的最佳选择。近年来,该散热器在纺织、印染、橡胶、制革、木材加工、涂装烤漆等行业中已得到广泛应用,均取得满意的效果。
钢铝复合翅片管制造工艺先进,它是钢、铝管复合在专用机床上轧制而成,使钢基管与铝翅片结合紧密,它具有热阻小、传热性能好、强度高、流动损失小、防腐蚀性能强、工作寿命长等优点。
钢铝复合翅片管规格性能见下表。(注:其它规格可根据用户需要加工) |
| 外径
D(mm) |
翅片高度
h(mm) |
翅片厚度
s(mm) |
翅片节距
t(mm) |
铝管壁厚
h(mm) |
钢管壁厚
h(mm) |
总外表面积
Sw(m2/m) |
铝管壁厚
(Sw/Sn) |
| 50 |
11.5 |
0.3 |
2.5 |
1 |
2 |
1.206 |
18.28 |
|
浮头式结构保证了散热器在温差较高的工作环境中及设备外始运行时的巨大热应力能得到有效的补偿。
FUL型散热器可有不同表面管长、管数及排数组成多种规格,其流程可根据用户需要制成双流程、三流程、四流行及多流程,使用部门可根据需要任意选用。
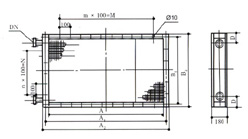
FUL型散热器型号规格表示方法:
型号--迎风面长的分米数化整×迎风面宽的分米数化整。
如:迎风面长为1000mm,迎风面宽为837mm。
则为:FUL--10×8
FUL型散热器外型尺寸及主要参数见下表: |
| 型号 |
迎风面积m2 |
散热面积m2 |
净通风截面积m2 |
表面管数 |
排数 |
连接管DN(in) |
尺 寸 (mm) |
| A |
B |
A1 |
A2 |
B1 |
B2 |
D |
n |
N |
m |
M |
| FUL-5×5 |
0.257 |
10.854 |
0.123 |
9 |
2 |
3/2 |
500 |
513 |
560 |
600 |
553 |
593 |
75 |
4 |
400 |
4 |
400 |
| 8×5 |
0.410 |
17.366 |
0.196 |
800 |
860 |
900 |
7 |
700 |
| 10×5 |
0.513 |
21.736 |
0.245 |
1000 |
1060 |
100 |
9 |
900 |
| 6×6 |
0.405 |
17.366 |
0.191 |
12
|
2
|
3/2
|
600 |
675 |
660 |
700 |
715
|
755
|
75
|
5
|
500
|
5 |
500 |
| 8×6 |
0.54 |
23.155 |
0.255 |
800 |
860 |
900 |
7 |
700 |
| 10×6 |
0.675 |
28.944 |
0.318 |
1000 |
1060 |
110 |
9 |
900 |
| 12×6 |
0.81 |
34.733 |
|
1200 |
1260 |
1300 |
11 |
1100 |
| 8×8 |
0.67 |
28.944 |
0.313 |
15
|
2
|
2
|
80 |
837
|
860 |
900 |
877
|
917
|
75
|
7
|
70
|
7 |
700 |
| 10×8 |
0.837 |
36.18 |
0.391 |
1000 |
1060 |
1100 |
9 |
900 |
| 12×8 |
1.004 |
43.416 |
0.469 |
1200 |
1260 |
1300 |
11 |
1100 |
| 14×8 |
1.172 |
50.652 |
0.547 |
1400 |
1460 |
1500 |
13 |
1300 |
| 14×10 |
1.474 |
64.159 |
0.683 |
19
|
2
|
3/2
|
1400 |
1053
|
1460 |
1500 |
1093
|
1133
|
75
|
9
|
900
|
13 |
1300 |
| 16×10 |
1.685 |
73.325 |
0.78 |
1600 |
1660 |
1700 |
15 |
1500 |
| 18×10 |
1.895 |
82.490 |
0.878 |
1800 |
1860 |
1900 |
17 |
1700 |
| 18×12 |
2.284 |
99.857 |
1.052 |
23
|
2
|
3
|
1800 |
1269
|
2060 |
2100 |
1309
|
1349
|
75
|
11
|
1100
|
17 |
1700 |
| 20×12 |
2.538 |
110.952 |
1.169 |
2000 |
2060 |
2100 |
19 |
19 |
| 22×12 |
2.792 |
122.047 |
1.286 |
2200 |
2260 |
2300 |
21 |
2100 |
| 25×12 |
3.173 |
138.69 |
1.461 |
2500 |
2560 |
2600 |
24 |
2400 |
|
|
|
|